
PAUSENZAUBER – Ideen verorten
Im Projekt PAUSENZAUBER geht’s kreativ weiter: Die Schüler:innen entwickeln Gestaltungsideen zu ihren Top 5 Wunschthemen für den Pausenhof.
Die Kindergartenklassen Birke und Lärche setzen ihre Vorstellungen mit fantasievollen Zeichnungs-Collagen um. In den Klassen 1.–3. A/B/C und 4.–6. A/B/C entstehen ausdrucksstarke Foto-Collagen.
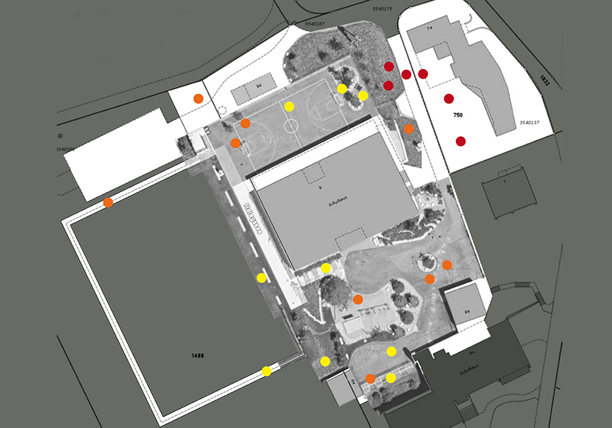
Besonders wichtig in diesem Schritt: Die Ideen werden verortet – die Kinder überlegen sich genau, wo auf dem Pausenhof ihre Idee Platz finden und warum gerade dort. So reflektieren sie nicht nur ihre eigenen Bedürfnisse, sondern auch den vorhandenen Raum und das Miteinander auf dem Schulgelände.
Die gestalterische Arbeit fördert dabei Kreativität, Ausdruckskraft, Medienkompetenz sowie ein bewusstes Verständnis für den gemeinsam genutzten Aussenraum – als Lebens-, Spiel-, Lern- und Erholungsort.
Im Anschluss werden alle Arbeiten im Windfang der Schule ausgestellt und sind während der Schulöffnungszeiten für alle Interessierten zugänglich.
Legende:
ROT = Kindergartenklassen
ORANGE = 1. – 3. A/B/C Klassen
GELB = 4. – 6. A/B/C Klassen
Ideen verorten – 2D plus Workshop – Team:
Joséphine E. Strebel, Nevena Torboski / drumrum Raumschule
Laura Lanfranchi / Kulturagentin Bern
Additional Details
Teilnehmer:innen -
Projektnummer - 126-BE-2025
